La Casina del Salvi

La Casina del Salvi fu costruita nel 1835, a ridosso dei resti del tempio del Divo Claudio, per volere di papa Gregorio XVI (1831-1846), per ampliare e abbellire la passeggiata archeologica. L’edificio, adibito a caffetteria, prende il nome dal suo progettista, l’architetto Gaspare Salvi, che si ispirò funzionalmente alla coffee-house del Pincio disegnata dal Valadier.
A seguito di lavori di manutenzione, condotti dalla Sovrintendenza Capitolina, che hanno consentito l'adeguamento degli impianti e l'abbattimento delle barriere architettoniche, la palazzina neo-classicista è stata restituita alla sua funzione originaria di coffee-house al piano terra, a servizio dei cittadini e dei turisti che visitano il Celio, insieme a una nuova aula studio, con 38 postazioni, dotata di wi-fi e allestita con tavoli attrezzati per la ricarica dei dispositivi mobili e spazi di relax, negli ambienti al piano superiore.
L’intervento si inserisce nel progetto di pieno recupero e accessibilità di questo settore cittadino ricco di storia e significato.
Caffetteria e Aula Studio aperte tutti i giorni dalle 9.00 alle 16.30 (ora solare), dalle 9.00 alle 19.00 (ora legale)
Contatti
Info 3421231222
casinadelsalvi@outlook.it
info@relaislejardin.com
CASINA DEL SALVI – AULA STUDIO
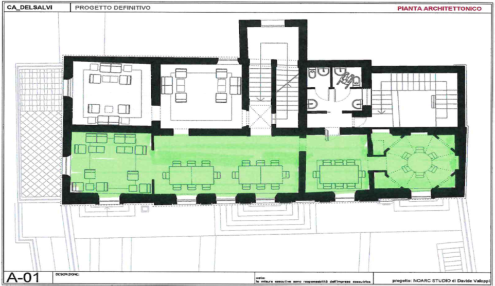
Gli spazi adibiti ad aula studio sono esclusivamente le 4 stanze al primo piano della Casina del Salvi (evidenziate in verde)
REGOLAMENTO
- L’accesso all’AULA è consentito fino a esaurimento dei posti disponibili, pari a 38
- L’accesso viene gestito dal personale della Caffetteria che rilascerà un badge numerato
- Non possono essere occupati posti per altre persone
- Non è consentito restare nell’AULA se non si ha un posto a sedere
- Il badge va riconsegnato obbligatoriamente prima di lasciare la struttura
- Si dovrà osservare un comportamento adeguato al luogo e rispettoso delle esigenze degli altri utenti della Casina
- Si invita a un uso corretto delle sale e dei servizi igienici, collaborando al mantenimento della pulizia e del decoro
- Si invita a non arrecare danni alla struttura e ai suoi arredi e a non apportare modifiche alla disposizione degli stessi
- È vietato fumare anche sigarette elettroniche






